|
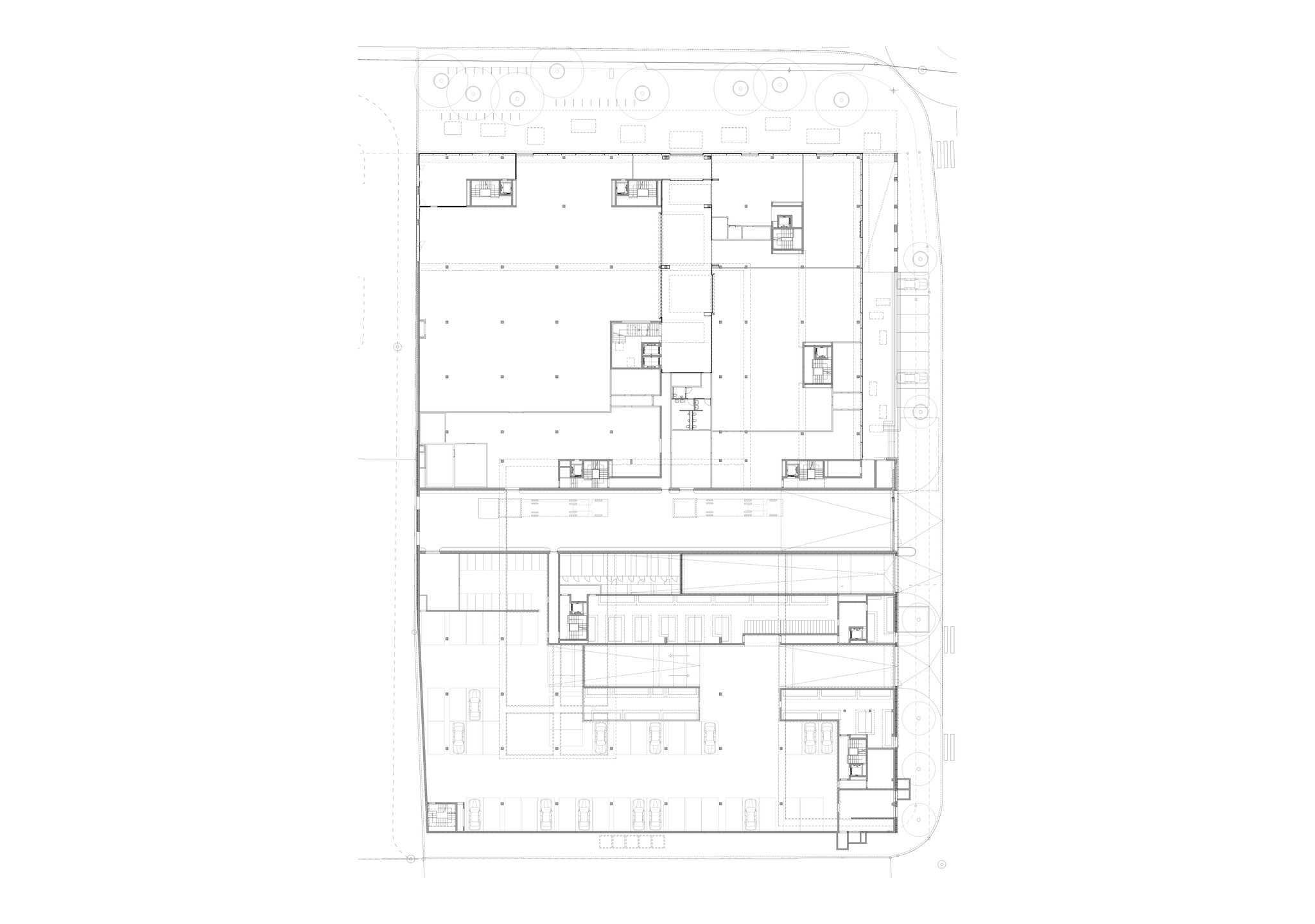
Projektart |
Neubau |
|
Auftragsart |
Studienauftrag 2009, 1. Preis |
|
Fertigstellung |
Juli 2018 |
|
Standort
|
Grossmatte 2A-I 6014 Littau - Luzern |
| Wohnungen |
143 |
| Parkplätze |
174 |
| GF |
14'740 m2 |
| GV (SIA 416) |
121'250 m3 |
|
Gebäudekosten BKP 2 |
CHF 57'000'000.-
|
|
Zertifizierungen |
|
|
Künstlerische Begleitung |
|
|
Bauing.
|
|
|
Totalunternehmer |
Publikationen
«Der neue Littauer_Vorzeigebau» in der Neuen Luzerner Zeitung
«Littau wird städtisch» in architektur, bauen + handwerk 2015/16
«Hier entstehen 450 neue Wohnungen» in NLZ
«Von der Abfahrtstrecke zum boomenden Stadtquartier» in Das Stadtmagazin
Kategorien